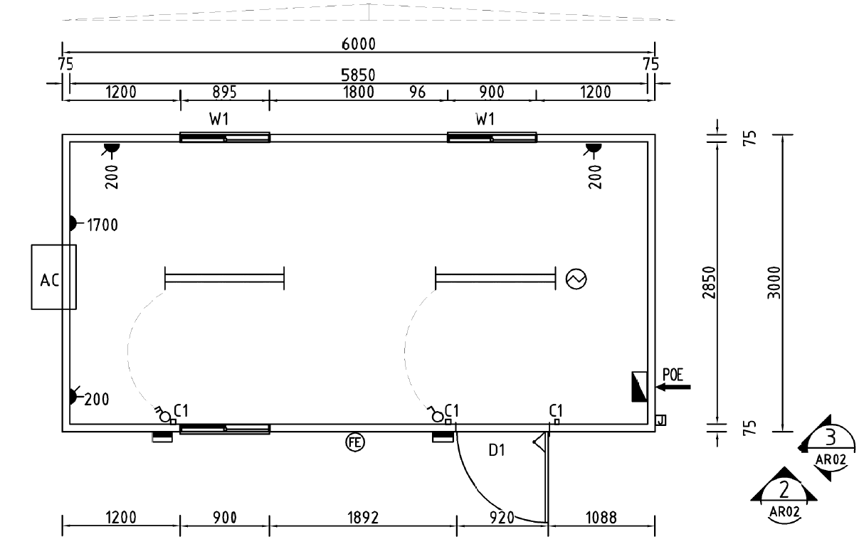
Transportable Building 6.0m x 3.0m
6.0m x 3.0m Transportable Office is suitable as a site office, this unit comes with air conditioners.
The office is situated in Perth. There is an option to buy outright or hire.
6.0m x 3.0m Transportable Site Office:
Office Room - Optional Extras
- Office Chairs
- Office Desks
- Filing Cabinets
- Curtains
- Bookcases
Applications
- Mine Sites
- Construction Site
- Events
- Mobile Camps
Building design criteria
- Transportable
- Temporary or Permanent
- Easy installation
Transportable Portable Building 6.0m x 3.0m

Click on below images for larger size

Loading...
Please note:
All second-hand and refurbished buildings are dependent on building being available at time of order.
For further information please contact us
Email: info@ascention.com.au